¸ÉϨ½¹ÌáÉý»úÊǸÉϨ½¹¹¤ÒÕÖеÄÒªº¦ÐÔ´óÐÍ×°±¸£¬ÌáÉý»úÔÚÕû¸ö¹¤ÒÕÀú³ÌÖÐÖ÷ÒªÍê³É½¹¹ÞµÄÌáÉý¡¢ºáÒÆ¡¢×°ÈëÐж¯£¬²¢ÇÒÔÚ½¹Ì¿×°È뿢ʺ󽫿ս¹¹ÞËͻؽ¹¹Þ̨³µÉÏ¡£ÌáÉý»úÔËÐÐÀú³ÌÖУ¬È«³ÌÎÞÐèÈËΪÊÖ¶¯²Ù×÷£¬ÌáÉý»ú¿ÉÒÔ×Ô¶¯¡¢¾«×¼¡¢¸ßЧµÄÍê³ÉËùÓй¤ÒÕÐж¯¡£ÏÂÃæÒøºÓ¼¯ÍŹÙÍøËÄ·½Îª¸÷ÈËÏÈÈÝ»ùÓÚÎ÷ÃÅ×ÓSINAMICS S120¶à´«¼Æ»®ÔÚ¸ÉϨ½¹ÌáÉý»úÉè±¹ØÁ¬ÄÓ¦Óá£
¸ÉϨ½¹ÌáÉý»úµÄÔËÐÐ״̬½«»á¶Ô¸ÉϨ½¹Éú²úµÄЧÂʱ¬·¢Ö±½ÓµÄÓ°Ï죬¶ø¿ØÖÆÌáÉý»úÌáÉý¡¢×ßÐеç»úµÄ±äƵÆ÷Ò²³ÉΪÁËÒªº¦×°±¸ÖеÄÒªº¦×°±¸£¬±äƵÆ÷µÄÎȹÌÔËÐÐÒ²³ÉΪÁËÌáÉý»úÎȹÌÔËÐеİü¹Ü¡£
ÏÖÔÚº£ÄÚ´ó¶àÌáÉý»úµÄ±äƵ¿ØÖÆÏµÍ³¶¼Ö»ÓÐÒ»Ì×£¬Ò»µ©±¬·¢¹ÊÕÏ£¬¶Ìʱ¼äÄÚÈôÎÞ·¨ÊµÊ±»Ö¸´£¬Ôò»áΪÆóÒµ´øÀ´ÖØ´óµÄ¾¼ÃËðʧ¡£¶øËæ×ÅÊг¡¶Ô½¹Ì¿µÄÐèÇóÔöÌí£¬¶ÔÔõÑù×èÖ¹ÕâÖÖËðʧ£¬³ÉΪÁËÉú²úÆóҵеÄÐèÇó¡£

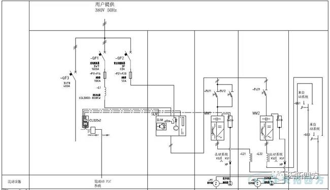
ÒøºÓ¼¯ÍŹÙÍøËÄ·½ÏµÍ³¼¯³ÉÊÂÒµ²¿£¬Îª¿Í»§ÍƼöÁ˽ÓÄÉÎ÷ÃÅ×ÓSINAMICS?S120¶à´«ÉèÖã¬Îª¿Í»§ÔöÌíÒ»Ì×ÓëÔϵͳ»¥Îª±¸ÓÃµÄ±äÆµÇý¶¯ÏµÍ³µÄˢмƻ®¡£
´Ë¼Æ»®ÓÉSLMÕûÁ÷/»ØÀ¡µ¥Î»¡¢MMµç»úÄ£¿é×é³ÉµÄ¹²Ö±Á÷ĸÏßÇý¶¯ÏµÍ³£¬À´°ü¹ÜÁ½Ì×ϵͳµÄ¿É¿¿Çл»£¬Í¬Ê±±¾¼Æ»®»¹½ÓÄÉÁËProfibus DP +TTSF×ÔÖ÷µÄÐÒéת»»²úÆ·£¬½«±äƵÆ÷µÄ¸÷Ïî״̬ÐźÅͨ¹ýͨѶÍêÉÆµÄÓëÏÖ³¡Ôϵͳ¶Ô½Ó£¬ÇÒ²»Ðè¶ÔÔϵͳ¾ÙÐйý¶à¸Ä¶¯£¬ïÔÌÁËË¢ÐÂÊÂÇéµÄÊÂÇéÁ¿£¬Ëõ¶ÌÁËË¢ÐÂÖÜÆÚ¡£

?ÏîĿˢÐÂÍê±Ïºó£¬¿Í»§¿É°´ÆÚÇл»²î±ðµÄϵͳ¾ÙÐÐÉú²ú£¬²¢¶ÔÁíÒ»Ì×ϵͳ×öÀýÐÐά»¤£¬´Ó¶ø¼«´óµÄ½µµÍÁË±äÆµ¹ÊÕÏ´øÀ´µÄÍ£»úƵÂÊ£¬×î´óÏ޶ȵÄïÔ̶ÔÒ»Ñùƽ³£Éú²ú´øÀ´Ó°Ï죬Ìá¸ßÁËÉú²úЧÂÊ£¬ÔöÌíÁËÆóÒµÊÕÒæ¡£
×÷ΪÎ÷ÃÅ×Óºã¾ÃµÄÕ½ÂÔºÏ×÷»ï°é£¬¹«Ë¾ÏúÊÛÎ÷ÃÅ×Ó¹¤ÒµÈí¡¢Ó²¼þ²úÆ·£¬ÐγÉÁ˼¯ÏúÊÛ¡¢Î¬ÐÞ¡¢·þÎñ¼°OEM¿Í»§ºÍÉú²úÁ÷³ÌÐͿͻ§½â¾ö¼Æ»®ÎªÒ»ÌåµÄ×ÛºÏÐÔÓªÒµºÍ·þÎñ£¬²¢Ò»Á¬¶àÄê»ñµÃÎ÷ÃÅ×Ó¸÷Ïî´ó½±¡£Í¬Ê±£¬¹«Ë¾»ùÓÚÎ÷ÃÅ×ӵIJúÆ·ºÍÊÖÒÕÒ»Ö±×ÔÖ÷Ñз¢ÖÖÖÖÍø¹Ø¡¢Êý¾ÝÊÕÂÞÆ÷¡¢½»Á÷»ú¡¢Í¨Ñ¶¿¨¡¢ÅþÁ¬¶Ë×Ó¡¢¸ôÀëÆ÷¡¢ÊµÊ±Êý¾Ý¿âµÈÈí¡¢Ó²¼þ²úÆ·¼°×Ô¶¯»¯ÏµÍ³¼¯³É¡¢ÏîĿʵÑéÓë·þÎñµÈÓªÒµ£¬²¢ÒѳÉΪͬҵÁìÏÈÕß¡£
ÔÚÈ«ÐÂÕ½ÂÔÍýÏë°²ÅÅÏ£¬ÒøºÓ¼¯ÍŹÙÍøËÄ·½ÒÔÖÂÁ¦ÓÚ³ÉΪÖйú¹¤ÒµÁìÓòÄÜΪ¿Í»§Ìṩ×Ô¶¯»¯¡¢Êý×Ö»¯¡¢ÍøÂ绯¡¢ÖÇÄÜ»¯µÄÒ»Á÷µÄÈíÓ²¼þ²úÆ·¡¢½â¾ö¼Æ»®Ç徲̨µÄÕûÌåÌṩÉ̺ÍÁìÏÈÕßΪĿµÄ£¬ÖÂÁ¦ÓÚ×ÊÖú¿Í»§ÓÅ»¯¹ÜÀí¡¢ÌáÉýЧÂʺͲúÆ·Æ·ÖÊ£¬Íƶ¯ÆóÒµÊý×Ö»¯Àú³Ì£¬ÎªÆóÒµºÍÕþ¸®ÌṩÖÇÄÜÖÆÔì×Éѯ¡¢ÍýÏë¡¢ÂäµØÊµÑéµÈÖÇÄÜÖÆÔìÕûÌå½â¾ö¼Æ»®ºÍ¡°ÍòÆóÉÏÔÆ¡±µÄÂäµØÊµ¼ù¡£